|
|
| Re: 4Pi with feet [message #78602 is a reply to message #78596] |
Tue, 10 December 2013 10:37   |
 |
Wayne Parham
Messages: 19015 Registered: January 2001
|
Illuminati (33rd Degree) |
|
|
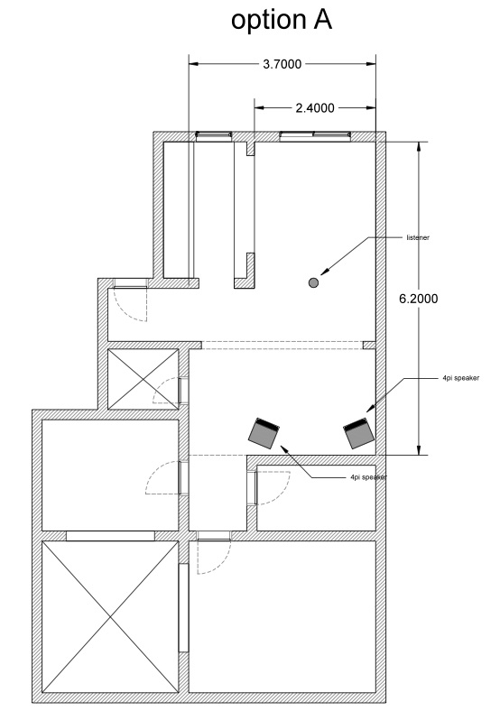
I would try both setups to see which one sounded best. Both setups have the speakers a little close to ipsilateral (nearest side) walls, with one speaker having much more wall reflection than the other. This will tend to make the one by the wall sound different than the other - a litlle heavier, more "congested" sounding. That will probably mess up the imaging, "pulling the sound" to one side, the side with the full wall.
Beyond that, option "A" has the advantage of not having the listener so close to the back wall. When the listeners are very close to the wall behind them, it tends to exaggerate the sound reflected from behind, which sounds unnatural. It isn't the same as having surounds, and is more like listening in a really small room, sort of "echoey sounding." Think bathrooms and caves.
But option "B" has the speakers a little further apart from each other, which will tend to give more of a "sweet spot." If the reflected sound off the wall behind the listeners isn't too strong, this is a good setup because it allows more lateral movement, more people on the couch.
Having speakers close together isn't necesarily bad, but there is a sort of "Goldilocks placement", where the speakers aren't too close together or too far apart:
|
|
|
|
| Re: 4Pi with feet [message #78605 is a reply to message #78602] |
Tue, 10 December 2013 13:01   |
lucasmateo
Messages: 43 Registered: October 2013
|
Baron |
|
|
Thanks Wayne,
It seems that I will have to try first. Option B is not bad I think, as it doesn't have a complete wall behind, so there will not be too much reflections... I can place the speakers on the top, they will be closer...
BTW, the woofers have started to break in, and they sound much better now, mids are more defined and bass a little tighter. I've been using a solid state amp, because with the 5w set amp, the break in period would last forever.
Tomorrow arrives the vox grill cloth, so maybe next week I have the speakers completed, with t-nuts, 15awg inductors, and beautiful vox grilles. I'll post some images.
|
|
|
|
|
|
|
|
|
|
|
|
|
|
| Re: 4Pi with feet [message #79786 is a reply to message #78127] |
Fri, 04 April 2014 14:30  |
Matts
Messages: 359 Registered: May 2009
|
Grand Master |
|
|
|
Very nice build! Another thing to look forward to- it seems that no matter how I upgrade the rest of my system, the Pi4's reflect the upgrades fine. They just sound better and better...
|
|
|
|