|
|
|
|
|
|
|
|
|
|
|
|
| Re: My 3π adventure [message #95603 is a reply to message #95260] |
Tue, 10 May 2022 14:36   |
ppkstat
Messages: 38 Registered: February 2022
|
Baron |
|
|
On with the plans. Definitely one of the most stressful, if not the most, processes of the project.
This is the overall size compared to the original plans. The stock is a bit thicker (19mm - 3/4") and there's a very slight difference in internal volume (shown in the picture) which I think is negligible. This is due to rounding values from in to mm.
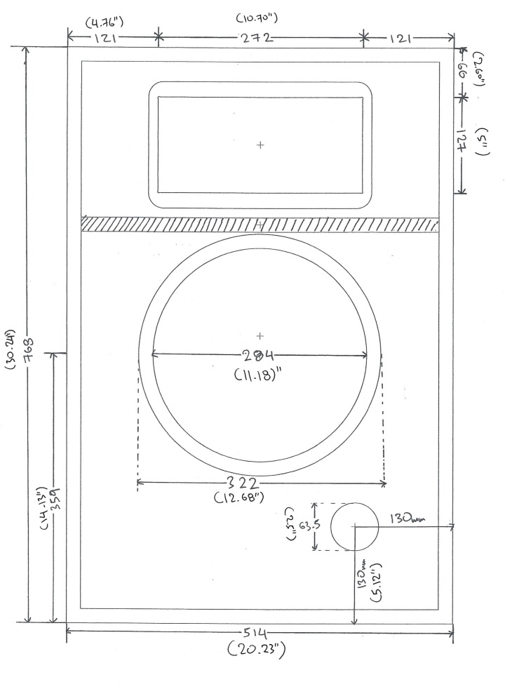
and this is the front panel plan both in mm and inches.
1)It's a bit alarming that I had to modify the size of both cutouts in order to accommodate the drivers. For the woofer the cutout is supposed to be 11 1/16" (281mm). The official drawing of 12PLB100 shows a diameter of 282mm so it cannot fit there. I took the liberty and designed the hole to be 284mm leaving a 2mm tolerance, I hope this turns out to be ok. The 10 ½" (267mm) width for the waveguide also appears to be small, I made this significantly larger at 272mm.
2)The distance between the two driver's centers ended up being 11" (279.5mm). Does that sound correct?
3)On the recessed parts:
I am not sure at all about the depth and width of the recessed parts. I will have to discuss this with the cabinet maker but two issues pop in my mind right now. The depth should be straight forward; however, I will use a 2mm EVA gasket for both drivers. This thing compresses but its difficult to estimate by how much. I made the depths for the parts to be 1mm shallower so when the driver is installed with the 2mm gasket it protrudes for about 1 mm. This way hopefully when it's tightened it will sit flush. If it recesses too much, I can always install another 1mm gasket, I hope that works. For the width I really have no idea. The point here is for the width to be as wide as need for the driver to be installed but on the same time not wide enough for it to show the lateral 'inside' surface of it. How critical is this it will also depend on the finish I guess. I left a 3mm tolerance for the woofer and less for the waveguide, but I will give the waveguide to the cabinet maker to test it. Not for a moment I know how I will install a 10kg driver from the top by holding just the edges.
4)Support will be added behind the drivers. A 19mm depth ring behind the woofer this will have the size of the reassessed part but with a slightly larger external diameter (10mm bigger). Two 15mm depth bars will be added behind the waveguides in the place where screws are. These will also have the size of the top and bottom recessed parts. Everything is going to be mounted with M5 bolts and Tnuts.
5)The bracing will be of the 'window' type, made from the same MDF 19mm. I moved it as close as I could to the woofer support ring because it might interfere with the waveguide placement since a 5mm fiberglass sheet will be installed on top of it. Is this the best practice? It will actually be a bit closer to the waveguide than shown in the picture because I designed the woofer support ring to be a bit larger than in these plans shown here.
I would highly appreciate any feedback at this stage, this is really uncharted territory for me!
-
Attachment: size.jpg
(Size: 414.00KB, Downloaded 892 times)
-
Attachment: front_panel.jpg
(Size: 102.44KB, Downloaded 905 times)
-
Attachment: re2.jpg
(Size: 196.89KB, Downloaded 798 times)
-
Attachment: re1.jpg
(Size: 189.15KB, Downloaded 892 times)
|
|
|
|
|
|
|
|
|
|