Home » Sponsored » Pi Speakers » 4Pi with feet (images of my 4pi project)
Re: 4Pi with feet [message #78596 is a reply to message #78544] Mon, 09 December 2013 16:52 Go to previous messageGo to next message
lucasmateo is currently offline  lucasmateo
Messages: 43
Registered: October 2013
Baron
Thanks Steven!

I'm moving again, I change home more often than car.

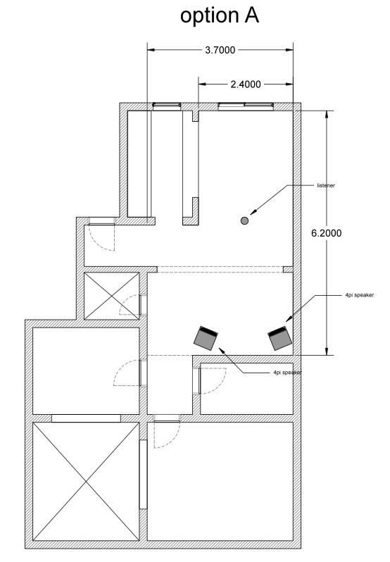
New home is smaller, the living room is small and with some difficult shapes. I've made some plans for you, my expert friends. I drew the living room part of the house and two possible options I thought, maybe you have better ideas. measures in meters.

I'll be moving in some weeks, so I cant test now, but I should buy some furniture in advance... so your opinion is welcome Smile


index.php?t=getfile&id=1355&private=0

index.php?t=getfile&id=1356&private=0

  • Attachment: op_a.png
    (Size: 138.74KB, Downloaded 5944 times)
  • Attachment: op_b.png
    (Size: 133.69KB, Downloaded 5842 times)
Re: 4Pi with feet [message #78602 is a reply to message #78596] Tue, 10 December 2013 10:37 Go to previous messageGo to next message
Wayne Parham is currently offline  Wayne Parham
Messages: 19027
Registered: January 2001
Illuminati (33rd Degree)

I would try both setups to see which one sounded best. Both setups have the speakers a little close to ipsilateral (nearest side) walls, with one speaker having much more wall reflection than the other. This will tend to make the one by the wall sound different than the other - a litlle heavier, more "congested" sounding. That will probably mess up the imaging, "pulling the sound" to one side, the side with the full wall.

Beyond that, option "A" has the advantage of not having the listener so close to the back wall. When the listeners are very close to the wall behind them, it tends to exaggerate the sound reflected from behind, which sounds unnatural. It isn't the same as having surounds, and is more like listening in a really small room, sort of "echoey sounding." Think bathrooms and caves.

But option "B" has the speakers a little further apart from each other, which will tend to give more of a "sweet spot." If the reflected sound off the wall behind the listeners isn't too strong, this is a good setup because it allows more lateral movement, more people on the couch.

Having speakers close together isn't necesarily bad, but there is a sort of "Goldilocks placement", where the speakers aren't too close together or too far apart:

Re: 4Pi with feet [message #78605 is a reply to message #78602] Tue, 10 December 2013 13:01 Go to previous messageGo to next message
lucasmateo is currently offline  lucasmateo
Messages: 43
Registered: October 2013
Baron
Thanks Wayne,

It seems that I will have to try first. Option B is not bad I think, as it doesn't have a complete wall behind, so there will not be too much reflections... I can place the speakers on the top, they will be closer...

BTW, the woofers have started to break in, and they sound much better now, mids are more defined and bass a little tighter. I've been using a solid state amp, because with the 5w set amp, the break in period would last forever.

Tomorrow arrives the vox grill cloth, so maybe next week I have the speakers completed, with t-nuts, 15awg inductors, and beautiful vox grilles. I'll post some images.
Re: 4Pi with feet [message #78677 is a reply to message #78127] Tue, 17 December 2013 14:13 Go to previous messageGo to next message
Matts is currently offline  Matts
Messages: 359
Registered: May 2009
Grand Master
I've found Pi4's sound excellent from other rooms and around corners, so you should be able to find a good placement easily enough. The still some degree of spatial characteristics outside the room. The sweet spot is sweet, but down the hall or in the next room has fine sound as well.
Re: 4Pi with feet [message #78678 is a reply to message #78677] Tue, 17 December 2013 14:43 Go to previous messageGo to next message
lucasmateo is currently offline  lucasmateo
Messages: 43
Registered: October 2013
Baron
I'll move in January, so I have time to try.

I've noticed that Matt, they sound quite good all over the house, even in other rooms as you say. The bass is better with distance, So I think it will sound more balanced in the new room, I'll have to try some places, but I'm pretty sure it will sound good.

The woofers have been breaking in a lot, its quite impressive, this speakers are the best I've ever had by far. I can recommend them to anyone without a doubt.

I didn't find the time to make the grills nor change the coils inside with 15awg. Maybe in January I'll post more images with new grills.
Re: 4Pi with feet [message #78780 is a reply to message #78127] Thu, 26 December 2013 16:24 Go to previous messageGo to next message
Matts is currently offline  Matts
Messages: 359
Registered: May 2009
Grand Master
I like the way my system sounds good all over the house. You can also experiment with speaker height- I get more bass when they're flat on the floor, but when I listen to jazz or classical, I put a block of wood under the front of them, which decouples the floor and tilts them up some. I've had them on stands, about a foot off the floor and titled a little, but was worried about dogs and kids.
Re: 4Pi with feet [message #79770 is a reply to message #78127] Sun, 30 March 2014 19:03 Go to previous messageGo to next message
lucasmateo is currently offline  lucasmateo
Messages: 43
Registered: October 2013
Baron
Grilles done, dogproof and kidfingersproof speakers.
Smile

Now the woofers are really broken in, 4pi are truly awesome.

http://hmoz.net/pi/grilles.jpg
Re: 4Pi with feet [message #79774 is a reply to message #79770] Tue, 01 April 2014 10:32 Go to previous messageGo to next message
Wayne Parham is currently offline  Wayne Parham
Messages: 19027
Registered: January 2001
Illuminati (33rd Degree)

Oh, wow, those really look great!

Re: 4Pi with feet [message #79786 is a reply to message #78127] Fri, 04 April 2014 14:30 Go to previous message
Matts is currently offline  Matts
Messages: 359
Registered: May 2009
Grand Master
Very nice build! Another thing to look forward to- it seems that no matter how I upgrade the rest of my system, the Pi4's reflect the upgrades fine. They just sound better and better...
Previous Topic: New Here - 7pi and ??? for LCR
Next Topic: H290C Horn Tweeter Review
Goto Forum:
  


Current Time: Tue Apr 28 10:37:10 CDT 2026

Sponsoring Organizations

DIY Audio Projects
DIY Audio Projects
OddWatt Audio
OddWatt Audio
Pi Speakers
Pi Speakers
Prosound Shootout
Prosound Shootout
Miller Audio
Miller Audio
Tubes For Amps
TubesForAmps.com

Lone Star Audiofest