| Need help on 4Pi speakers [message #71289] |
Wed, 08 February 2012 06:49  |
gilstone
Messages: 7 Registered: February 2012
|
Esquire |
|
|
Hello to everyone,
I'm interested on the 4Pi speakers using DE250 & JBL 2226h drivers.
I have a few questions:
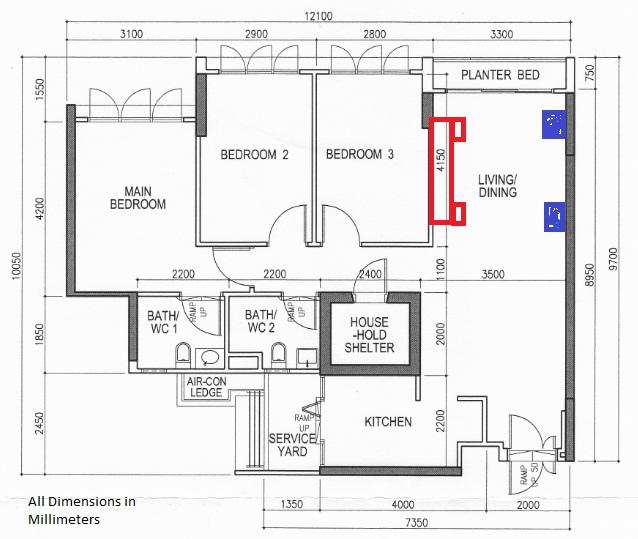
1) I have a very small living room, kindly refer to my floor plan below.
(The red colour drawing is my sofa and the blue one is the 4Pi speakers)
The listening distance is less than 3 meters, is 4Pi suitable for near-field listening?
Will this cause listening fatigue?
2) There are no side walls in my living room to reflect the sound wave from the 4Pi speakers, will this greatly reduce the bass output?
3) I'm planing to use Almarro A205A(5 wpc) with 4Pi, is it suitable?
I'm more worry on the LF side, does my low powered Almarro able to drive the JBL 2226h efficiently?
4) For the DE250 one inch throat, there are different type of horn mouth size to choose. Any differences on mouth size? Square or rectangular?
Also the material used for the horn? Plastic or cast aluminum?
Thanks for reading my post.
Regards,
Gilbert
-
Attachment: House2.jpg
(Size: 91.64KB, Downloaded 7226 times)
|
|
|
|
| Re: Need help on 4Pi speakers [message #71290 is a reply to message #71289] |
Wed, 08 February 2012 09:49   |
 |
Wayne Parham
Messages: 19024 Registered: January 2001
|
Illuminati (33rd Degree) |
|
|
Answers by numbers:
1. These speakers sound good even in very small rooms. I've had a pair in a small bedroom for years, and they sound great. It's also the size of the rooms at trade shows, which are less than ideal, of course, but our room sounds very good every year.
2. Our matched-directivity loudspeakers do not depend on side walls or corners like our constant directivity cornerhorns do. You will want to set them up with flanking subs, like shown in the photos below. This will not only provide greater extension, but will also smooth room modes.
3. Five watts is plenty. We have customers that run on half that much power, with good results. Again, you will want to use flanking subs for modal smoothing, and this also give greater extension. The flanking subs will have their own separate amplifier.
4. The horn is plastic. It has a round throat that exactly matches the DE250 compression driver.
four π speakers flanked with three π subs
Closeup of left speaker and its flanking sub
|
|
|
|
|
|
|
|
|
|
|
|
|
|
|
|